Beschrijving

Betreft
Riante winkelunit van circa 187 m² winkeloppervlak, alsmede een ruim souterrain van circa 100 m², gelegen in het winkelcentrum Liesveld. Het winkelcentrum is uiterst centraal in Vlaardingen gelegen en vormt een belangrijk onderdeel van het lokale winkelaanbod. Met meer dan 12.000 m² aan winkeloppervlak biedt het centrum een gevarieerd aanbod van landelijke ketens en lokale speciaalzaken, variërend van mode en lifestyle tot dagelijkse boodschappen en horeca.

Enkele bekende namen in de directe omgeving zijn: Albert Heijn, H&M, Gall & Gall, ICI Paris, Holland & Barrett, Vodafone, WE, Zeeman en nog veel meer. 

De bereikbaarheid van het Liesveld is zeer goed te nomen. 

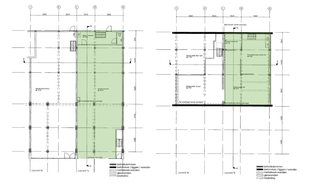
Oppervlakte/indeling
Begane grond:		circa 187 m² winkelruimte
Souterrain:		circa   80 m² opslagruimte
Totaal:			circa 267 m²

Bestemming
Conform het bestemmingsplan “Stadshart” geldt de bestemming “Centrum” hiervoor aangewezen gronden zijn bestemd voor:

- Ambachtelijke bedrijvigheid;
- Detailhandel, met uitzondering van supermarkten en volumineuze detailhandel;
- Dienstverlening;
- Horeca tot en met categorie 1 van de bij deze regels behorende Staat van horeca-activiteiten;
- Kantoren met baliefunctie;
- Maatschappelijke voorzieningen;

Parkeren
In de directe omgeving zijn diverse parkeergarages beschikbaar met ruim voldoende parkeergelegenheid.

Beschikbaar
Per direct.

Winkelcentrum Liesveld is zeer goed bereikbaar, zowel met eigen vervoer als met het openbaar vervoer.

De rijksweg A20 (Rotterdam – Hoek van Holland) ligt op slechts enkele minuten afstand van het winkelcentrum. Via afrit 8 (Vlaardingen-West) en afrit 9 (Vlaardingen) is het winkelgebied eenvoudig en snel bereikbaar. 

Ook met het openbaar vervoer is het Liesveld uitstekend bereikbaar. Op loopafstand bevindt zich metrostation Vlaardingen Centrum, dat onderdeel is van de RET metrolijn B (Hoek van Holland Haven – Nesselande). Deze lijn zorgt voor een directe verbinding met o.a. Rotterdam Centrum, Schiedam, Hoogvliet, Spijkenisse en Capelle aan den IJssel.

Daarnaast stoppen meerdere buslijnen van EBS en RET in de directe omgeving van het winkelcentrum, met haltes aan onder andere de Westhavenkade, Markt en het Veerplein.

Opleveringsniveau
De winkelruimte wordt in de huidige casco staat opgeleverd en is onder andere voorzien van:

- Brede rolpui*;
- Warmte gordijn bij de entree*;
- Systeemplafond v.v. inbouw spots*;
- Afgewerkte (gestuukte) wanden*; 
- Pantry*;
- Toilet*.

De met een * gemarkeerde onderdelen maken expliciet geen deel uit van het gehuurde. Onderhoud, vervanging en reparatie hiervan zijn voor rekening van huurder. 

Servicekosten
Servicekosten zijn niet van toepassing.

Huurperiode
5 (vijf) jaar met verlengingsperiode(n) van telkens 5 jaar. Afwijkende huurperioden zijn bespreekbaar.

Huurprijs
Winkelruimte met souterrain € 1.850,-- per maand.

Huurbetalingen
Per maand vooruit te voldoen.

Huurprijsindexering
Jaarlijks voor het eerst 1 jaar na huuringangsdatum, op basis van de consumentenprijsindex (CPI), reeks “CPI-Alle huishoudens – laag (2015=100).

BTW
De winkelruimte wordt vrij van BTW verhuurd. 

Huurovereenkomst 
Op basis van de standaard huurovereenkomst op basis van het ROZ-model: 

Winkelruimte en overige bedrijfsruimte in de zin van 7:290 BW 
Kantoorruimte en overige bedrijfsruimte in de zin van 7:230 BW.

Waarborgsom/bankgarantie
Een waarborgsom of bankgarantie gelijk aan 3 maanden bruto huurverplichting (huur + servicekosten).

Kenmerken