Beschrijving

Betreft
In het centrum van Vlaardingen, midden in winkelcentrum Liesveld, is een opvallende winkelruimte van circa 132 m² beschikbaar voor verhuur. Dankzij de prominente hoekligging en de grote, hoge raampartijen beschikt het pand over uitstekende zichtbaarheid en veel natuurlijke lichtinval, een ideale winkellocatie.

De ruimte wordt in casco staat opgeleverd, waardoor huurders de mogelijkheid hebben om het geheel naar eigen inzicht in te richten. In overleg met verhuurder is het mogelijk om de bovengelegen kantoorruimte van circa 100 m² bij het gehuurde te betrekken, middels het plaatsen van een interne trap.

Winkelcentrum Liesveld vormt een belangrijk onderdeel van het Vlaardingse winkelaanbod en beslaat meer dan 12.000 m² aan winkeloppervlak. Het centrum biedt een gevarieerde mix van landelijke formules en lokale ondernemers, met een breed aanbod in mode, lifestyle, dagelijkse boodschappen en horeca. Op het naastgelegen Veerplein vindt bovendien op woensdag en zaterdag een druk bezochte weekmarkt plaats, wat zorgt voor extra aanloop en levendigheid in het gebied.

In de directe omgeving zijn onder andere gevestigd: Albert Heijn, H&M, Gall & Gall, ICI Paris XL, Holland & Barrett, Vodafone, WE, Zeeman en diverse andere bekende namen.

Oppervlakte/indeling
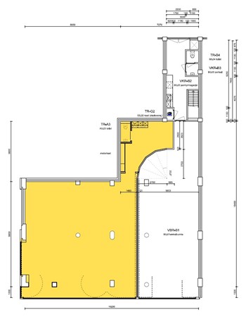
Begane grond:		circa 132 m² winkelruimte			
Eerste verdieping:	circa 100 m² kantoorruimte (optioneel)*	  

*Indien de eerste verdieping bij het gehuurde wordt betrokken, wordt hiervoor €100,-  per m² per jaar excl. BTW en servicekosten berekend.

Bestemming
Conform het bestemmingsplan “Stadshart” geldt de bestemming “Centrum” hiervoor aangewezen gronden zijn bestemd voor:
- Ambachtelijke bedrijvigheid;
- Detailhandel, met uitzondering van supermarkten en volumineuze detailhandel;
- Dienstverlening;
- Horeca tot en met categorie 1 van de bij deze regels behorende Staat van horeca-activiteiten;
- Kantoren met baliefunctie;
- Maatschappelijke voorzieningen;

Parkeren
In de directe omgeving zijn diverse parkeergarages beschikbaar met ruim voldoende parkeergelegenheid.

Beschikbaar
Per direct.

Bereikbaarheid
Winkelcentrum Liesveld is uitstekend bereikbaar, zowel met eigen vervoer als met het openbaar vervoer. De rijksweg A20 (Rotterdam – Hoek van Holland) bevindt zich op slechts enkele minuten rijden. Via afrit 8 (Vlaardingen-West) en afrit 9 (Vlaardingen) is het winkelgebied eenvoudig en snel te bereiken.

Ook met het openbaar vervoer is de bereikbaarheid goed geregeld. Metrostation Vlaardingen Centrum ligt op loopafstand en is onderdeel van RET metrolijn B (Hoek van Holland Haven – Nesselande), met een directe verbinding naar onder andere Rotterdam Centrum, Schiedam, Hoogvliet en Capelle aan den IJssel.

Daarnaast stoppen diverse buslijnen van EBS en RET in de directe omgeving van het winkelcentrum, met haltes aan onder meer de Westhavenkade, het Veerplein en de Markt.

Energielabel
A.

Opleveringsniveau
De winkelruimte wordt in de huidige casco staat opgeleverd en verhuurd en is onder andere voorzien van:

- Eigen entree met dubbele deur;
- Pantry*.

De met een * gemarkeerde onderdelen maken expliciet geen deel uit van het gehuurde. Onderhoud, vervanging en reparatie hiervan zijn voor rekening van huurder. 

Servicekosten
Een voorschotbedrag van € 30,-- per m², per jaar (exclusief BTW) wordt in rekening gebracht voor nader te overleggen leveringen en diensten namens Verhuurder.

Promotiebijdrage
Maandelijks wordt er een bedrag van € 10,-- per m², per jaar (exclusief BTW) in rekening gebracht ten behoeve van de promotiebijdrage van de winkeliersvereniging. 

Huurperiode
5 (vijf) jaar met verlengingsperiode(n) van telkens 5 jaar. Afwijkende huurperioden zijn bespreekbaar.

Huurprijs
Winkelruimte:	 € 2.640,-- per maand (exclusief BTW en servicekosten).

Huurbetalingen
Per maand vooruit te voldoen.

Huurprijsindexering
Jaarlijks voor het eerst 1 jaar na huuringangsdatum, op basis van de consumentenprijsindex (CPI), reeks “CPI-Alle huishoudens – laag (2015=100).

BTW
Verhuurder wenst te opteren voor een met BTW belaste verhuur. Genoemde prijzen zijn exclusief BTW.

Huurovereenkomst 
Op basis van de standaard huurovereenkomst op basis van het ROZ-model: 

Winkelruimte en overige bedrijfsruimte in de zin van 7:290 BW 

Waarborgsom/bankgarantie
Een waarborgsom of bankgarantie gelijk aan 3 maanden bruto huurverplichting (huur + servicekosten inclusief BTW).

Kenmerken