Beschrijving
Representatieve Kantoorruimte van totaal circa 453 m2 met Uitzicht op de Haven. Huurmogelijkheden vanaf circa 220 m2.
De Mercuriusweg in Schiedam is waar functionaliteit en inspiratie samenkomen. Dit moderne kantoor biedt niet alleen een ideale werkruimte, maar ook een prachtig uitzicht over de haven, wat bijdraagt aan een motiverende werkomgeving.
Kenmerken:
Locatie:
Strategisch gelegen nabij belangrijke verkeersader, met uitstekende verbindingen naar Rotterdam en de A20. De Mercuriusweg 10 – 12 te Schiedam is gelegen in het haven gebied in Schiedam Zuid aan de Nieuwe Maas. Op het bedrijventerrein zijn voornamelijk partijen gevestigd met logistieke/haven gerelateerde werkzaamheden.
Uitzicht:
Geniet van een adembenemend uitzicht op de haven, perfect voor een creatieve boost tijdens je werkdag.
Ruimtes:
Flexibele indeling met verschillende kantoorruimtes, vergaderzalen en gemeenschappelijke ruimtes.
Voorzieningen:
Voorzien van moderne faciliteiten, zoals snelle internetverbinding, airconditioning en parkeermogelijkheden.
Of je nu een start-up bent of een gevestigd bedrijf, deze kantoorruimte biedt de perfecte basis om je bedrijf te laten groeien. Neem vandaag nog contact met ons op voor een bezichtiging! Een deel van de te verhuren ruimte kan naar wens ingedeeld worden.
Auto:
De Mercuriusweg 10 – 12 is goed te bereiken via de A4 door de “Westfrankelandsedijk” welke uitkomt in de “Havendijk” te volgen. Via de A20 door de “’s-Gravenlandseweg” te volgen naar de “Nieuw-Mathenesserstraat”.
Openbaar vervoer:
Via het Openbaar vervoer is het object te bereiken via de bushalte (lijn 54) welke op loopafstand van het object is gelegen. Tevens kans het object via de watertaxi worden bereikt via opstaphalte Schiedam Zuid (93).
Opleveringsniveau
De kantoorruimte wordt in gerenoveerde staat opgeleverd en zal onder andere worden voorzien van de volgende voorzieningen:
- Gerenoveerde en representatieve entree voorzien van nieuwe gietvloer;
- Gestuukte wanden;
- Systeemplafond voorzien van LED panelen (600x600) aangestuurd door bewegingssensoren;
- Kabelgoten voorzien van elektra;
- Nieuwe toiletgroepen;
- pantry;
- Aanwezige radiatoren;
- Te openen ramen.
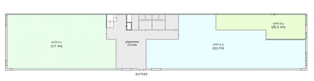
Oppervlakte/indeling
Begane grond
ca. 233 m2 kantoorruimte
ca. 220 m2 kantoorruimte
Parkeerplaatsen
Voor het pand is een parkeerterrein gelegen met voldoende parkeerplaatsen waar zonder betaling geparkeerd kan worden. Anders kan er in de directe omgeving geparkeerd worden zonder betaling.
Servicekosten
Een voorschotbedrag van € 40,-- per m2 per jaar exclusief BTW:
- Verbruik gas (gehuurde alsmede algemene ruimte);
- Verbruik water (gehuurde alsmede algemene ruimte);
- Verbruik elektra (gehuurde alsmede algemene ruimte);
- Jaarlijkse inspectie en klein onderhoud brandslanghaspel;
- Jaarlijkse inspectie en onderhoud brandmeldinstallatie en melders;
- Jaarlijkse inspectie en klein onderhoud elektrische installaties inclusief nood- en vluchtwegverlichting en NEN 3140
inspectie;
- Jaarlijkse inspectie en klein onderhoud dakbedekking inclusief lichtstraten, rookluiken en valbeweging;
- Periodiek terrein- en groenonderhoud;
- Schoonmaak algemene ruimte en levering sanitaire artikelen;
- Vuilafvoer;
- Reinigen straatkolken en algemene riolering;
- Periodieke glasbewassing buitenzijde;
- Periodieke gevelreiniging (1 x in de 3 jaar);
- Periodieke legionella controle;
- Ongediertebestrijding;
- Onderhoud bewegwijzering’
- Alle werkzaamheden die door Verhuurder namens Huurders worden verricht en die conform artikel 11 van de Algemene
Bepalingen ten laste van huurder komen;
- Administratiekosten ad 5% over de hierboven genoemde leveringen en diensten.
Huurprijs (in gerenoveerde staat)
€ 110,-- per m2 per jaar exclusief BTW en servicekosten.
Huurperiode
5 (vijf) jaar met verlengingsperiode(n) van telkens 5 jaar. Afwijkende huurperioden zijn in overleg bespreekbaar.
Huurbetalingen
Per kwartaal vooruit te voldoen
Omzetbelasting
Verhuurder wenst te opteren voor BTW belaste huur en verhuur. In geval huurder de BTW niet kan verrekenen zal de huurprijs in overleg met huurder worden verhoogd ter compensatie van de gevolgen van het vervallen van de mogelijkheid om te opteren voor BTW belaste huur.
Huurprijsindexering
Jaarlijks voor het eerst 1 jaar na huuringangsdatum, op basis van de consumentenprijsindex (CPI), reeks “CPI-Alle huishoudens – laag (2015=100).
Huurovereenkomst
Conform het standaard ROZ-model Kantoorruimte en overige bedrijfsruimte in de zin van 7:230 BW.
Waarborgsom/bankgarantie
Een waarborgsom of bankgarantie gelijk aan 3 maanden bruto huurverplichting (inclusief BTW en servicekosten).
Aanvaarding
In overleg.